
Umnutzung vorhandene Halle für Grünamt Stadt Nordhausen
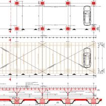
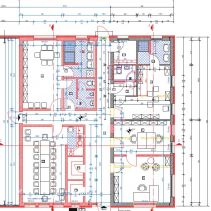
Für das Grünamt der Stadt Nordhausen, sollten in einer ehemaligen Getränkehalle ansprechende Büroräume entstehen. Des Weiteren bestand der Wunsch nach ausreichend überdachten Stellplätzen auf dem Gelände. Das vorhandenen Gebäude wurde grundlegend neu strukturiert und es wurde auf der Freifläche davor ein großes Carport errichtet. Unsere Leistungen: Planung, Tragwerksplanung, Ausschreibung und Bauleitung.
Ausführungszeitraum: 2012 - 2013
Auftraggeber: Stadtwirtschaft Nordhausen GmbH
Gesamtinvestition: 200.000 EUR
Auftraggeber: Stadtwirtschaft Nordhausen GmbH
Gesamtinvestition: 200.000 EUR










zu Projekten | Startseite

