
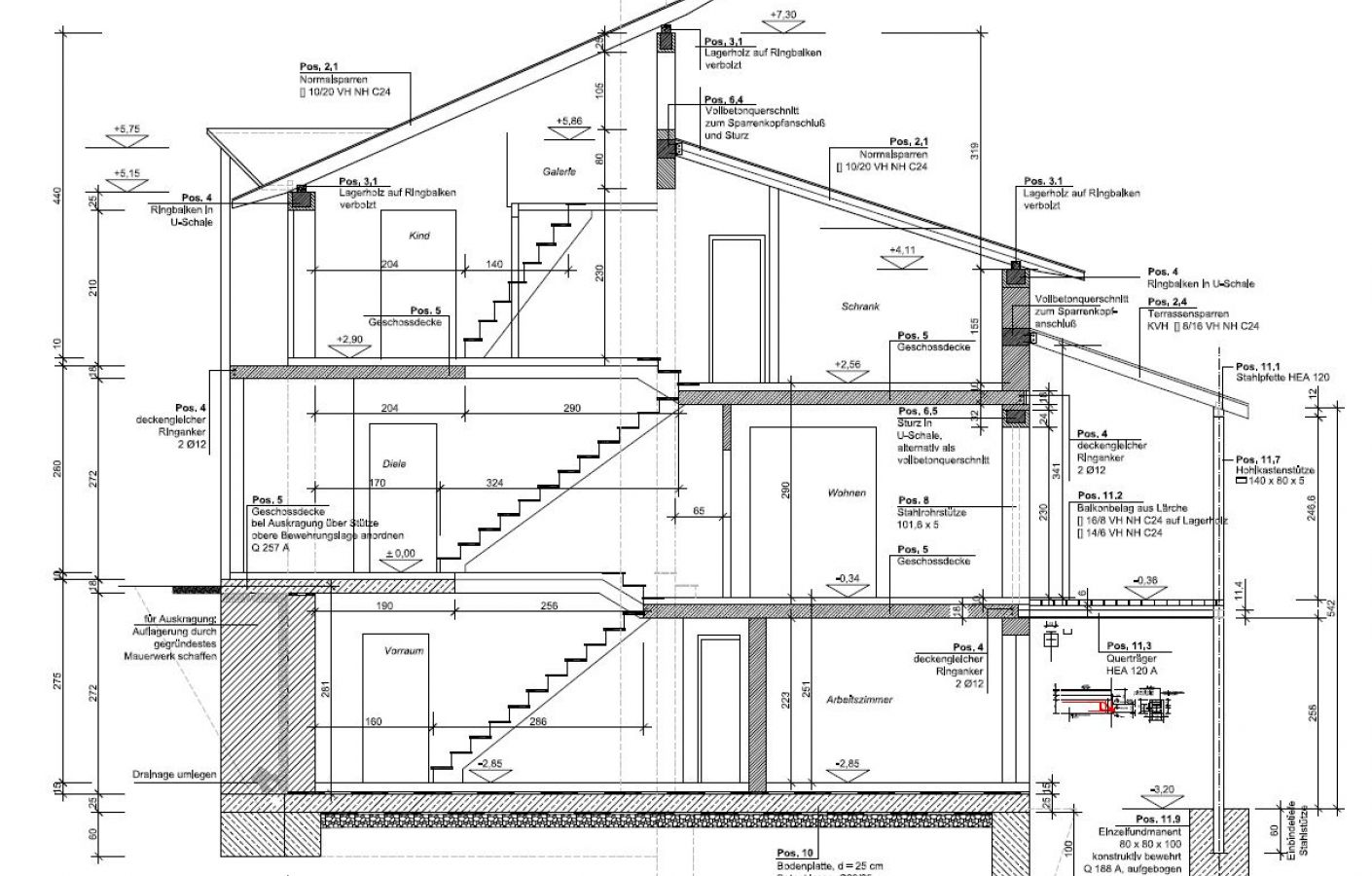
Tragwerksplanung für ein EFH in Nordhausen (2)
Für den Bau eines Einfamilienhauses mit Vollkeller führten wir 2006 die Tragwerksplanung aus.
Ausführungszeitraum: 2006
Auftraggeber: Privat
Gesamtinvestition: -/-
Auftraggeber: Privat
Gesamtinvestition: -/-


zu Projekten | Startseite

