
Neubau eines EFH (2) in Görsbach
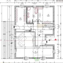
Dieses praktische 1,5-geschossige Einfamilienhaus ohne Keller, entstand im Jahr 2016 in Görsbach. Die Bauherren haben einen wunderschönen und unverbauten Blick in die Goldene Aue. Unsere Leistungen waren: Gebäudeplanung und Tragwerksplanung
Ausführungszeitraum: 2016
Auftraggeber: Privat
Gesamtinvestition: 250.000 EUR
Auftraggeber: Privat
Gesamtinvestition: 250.000 EUR







zu Projekten | Startseite

